Страница 1 из 1
Планировка ЖК "Фили Град" корпус 1Б
Добавлено: 12 май 2014, 16:40
Ser
В этой теме обсуждаем планировки в корпусе 1Б.
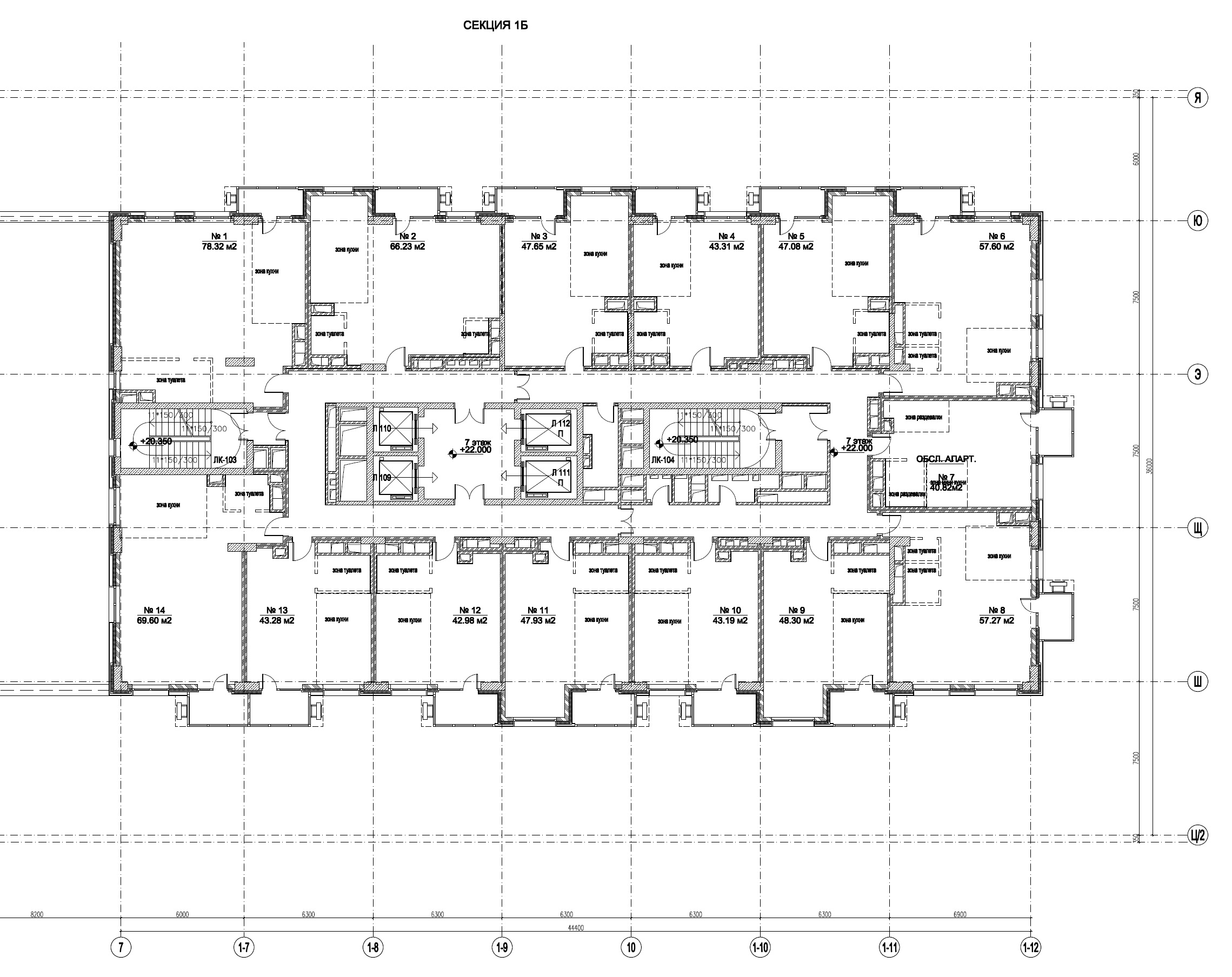
Подробный план в корпусе 1Б:

- подробная планировка
- Фили Град копус 1Б.jpg (702.67 КБ) 22678 просмотров
В Pdf:
Re: Планировка ЖК "Фили Град" корпус 1Б
Добавлено: 23 дек 2014, 10:36
Artur
А почему указана площадь аппартаментов №7 40.82м? На сайте метриум 41.24м.
Подскажите новеньким)
Re: Планировка ЖК "Фили Град" корпус 1Б
Добавлено: 27 май 2015, 16:28
Ser
Re: Планировка ЖК "Фили Град" корпус 1Б
Добавлено: 28 май 2015, 00:32
yard
А это уже итоговый фактический вариант или что это за схема?
Это уже третья схема (первая была в исходных брошюрах, по которым продавали, вторая - в начале этой темы), и везде площади разные, причем в разных апартаментах как в большую, так и в меньшую сторону менялась

.
Правильно я понимаю, что межкомнатные стены ещё уменьшат площадь рассчетную к моменту сдачи относительной той, которая в схеме указана?
Re: Планировка ЖК "Фили Град" корпус 1Б
Добавлено: 09 окт 2015, 19:24
Rumata
А что здесь является жилой зоной, а что коридором/прихожей?
Это важно для расширения площади кухни, кто-нибудь может подсказать?
Re: Планировка ЖК "Фили Град" корпус 1Б
Добавлено: 09 окт 2015, 19:48
falcon
Rumata писал(а):кто-нибудь может подсказать?
Запрашивайте у застройщика из Проектной документации 2015 г: Раздел 3. Книга 1. Архитектурно-строительные решения. Планы. Корпус 1. (я пока сам пытаюсь получить Книгу 2 по корпусу 2).